
VEJLE HOLIDAY HOME
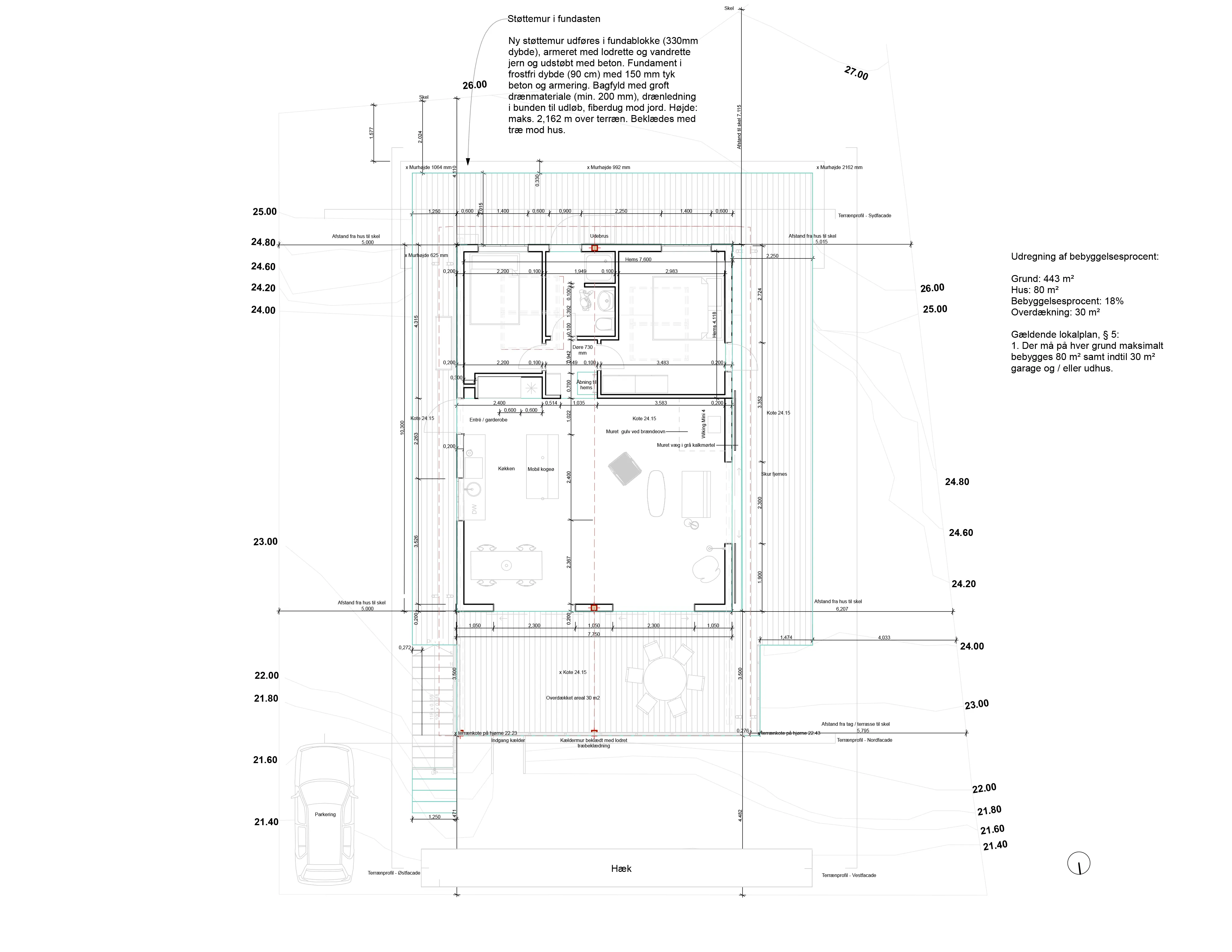
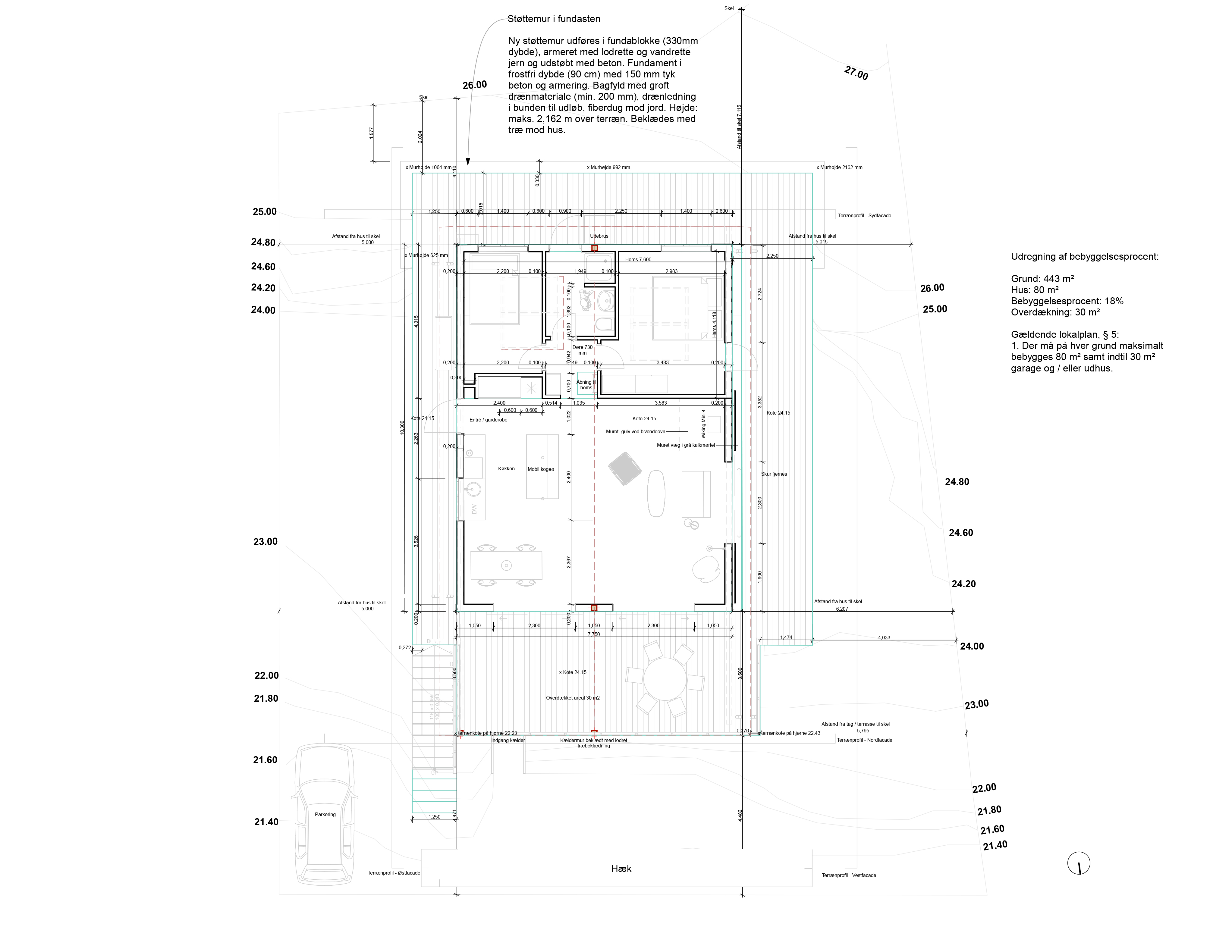
The summer house is situated on a large plot in the scenic landscape of Lejre, surrounded by tall trees that provide privacy and a calm atmosphere. The design balances openness and enclosure, with large west- and southwest-facing windows opening towards the forest, while the eastern façade remains more closed to shield the house from neighbors and the road.



The layout is divided into three zones: two identical rooms to the north, a central bathroom, and a spacious kitchen-living area to the south with a pitched ceiling. An integrated soakaway system handles rainwater sustainably, reducing the ecological footprint of the house.
Typology: Architecture
Client: Private
Program: Renovation and extension of holiday home
Location: Vejle
Year: 2024