
ROSKILDE APARTMENTS
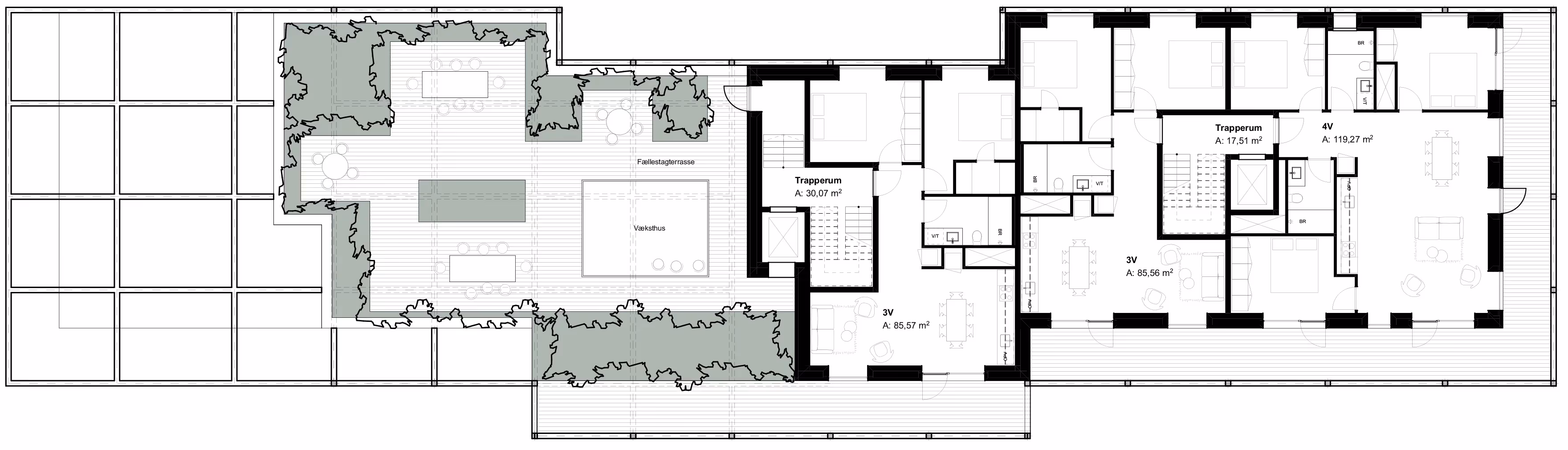
The housing development offers flexible, modern homes for families, co-living communities, and blended households. With a focus on social sustainability, the project balances private, semi-private, and shared spaces to support both community and personal life. Built in warm, natural materials—primarily timber—the architecture conveys a calm and harmonious character. Spacious apartments are complemented by rooftop terraces and a greenhouse where residents can gather, grow vegetables, or enjoy the greenery. Ground-floor communal areas and small outdoor zones encourage everyday encounters and an active neighborhood life.

The design supports good neighborly relations by allowing residents to choose when and how they engage in shared activities. Balconies and façades in wood create a welcoming and natural expression, while adaptable sun and noise screens ensure privacy and comfort without reducing light or views.

We believe in a gentle transition between private and public realms to create human comfort in a modern, social neighborhood near the Roskilde fairgrounds. Each apartment connects to large south-facing balconies, offering sunlight throughout the day and flexible spaces for both quiet retreat and social life.
The project is designed with senior residents in mind—without being a care facility. Shared lounges, rooftop terraces, and green outdoor areas provide opportunities for connection and relaxation. The timber construction combines aesthetics, functionality, and environmental responsibility, offering a healthy indoor climate and a reduced carbon footprint.


Over time, the timber façades will patinate beautifully, reinforcing the natural expression. Generous balconies and green terraces integrate planting and wooden details, while a rooftop greenhouse creates a soft link between architecture and nature—where residents can grow herbs or enjoy a peaceful green space in the city. The south façade opens toward the square, while the north side appears more private, shielded by sliding timber louvers. Wood unites the building in one coherent, tactile whole.
Typology: Architecture
Client: Private
Program: Residential units
Location: Roskilde
Area: 2030 m2
Status: Sketch proposal