

EXTENSION OF A HOUSE ON BELSMOSEVEJ
The project at Belsmosevej 12 involves an extension of an existing single-family house. The primary ambition has been to bring the house together into one clear architectural concept, creating a calmer and more coherent whole – both functionally and architecturally.
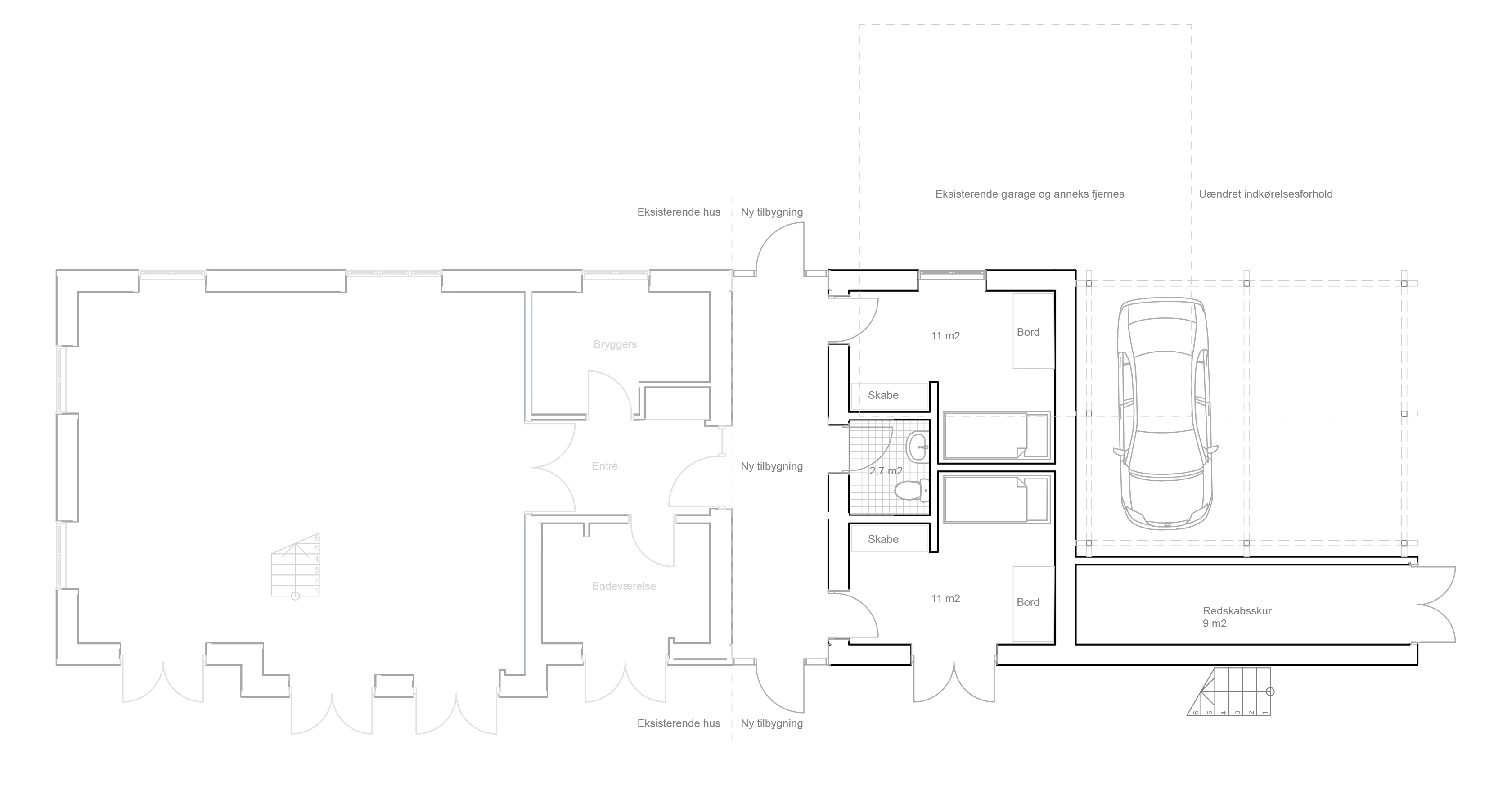
A key focus has been to simplify the building volumes and unify the house, extension, and garage into a single, legible structure. Smaller secondary buildings have been removed in favour of a more robust and readable composition, where the relationship between new and existing is clear yet balanced.

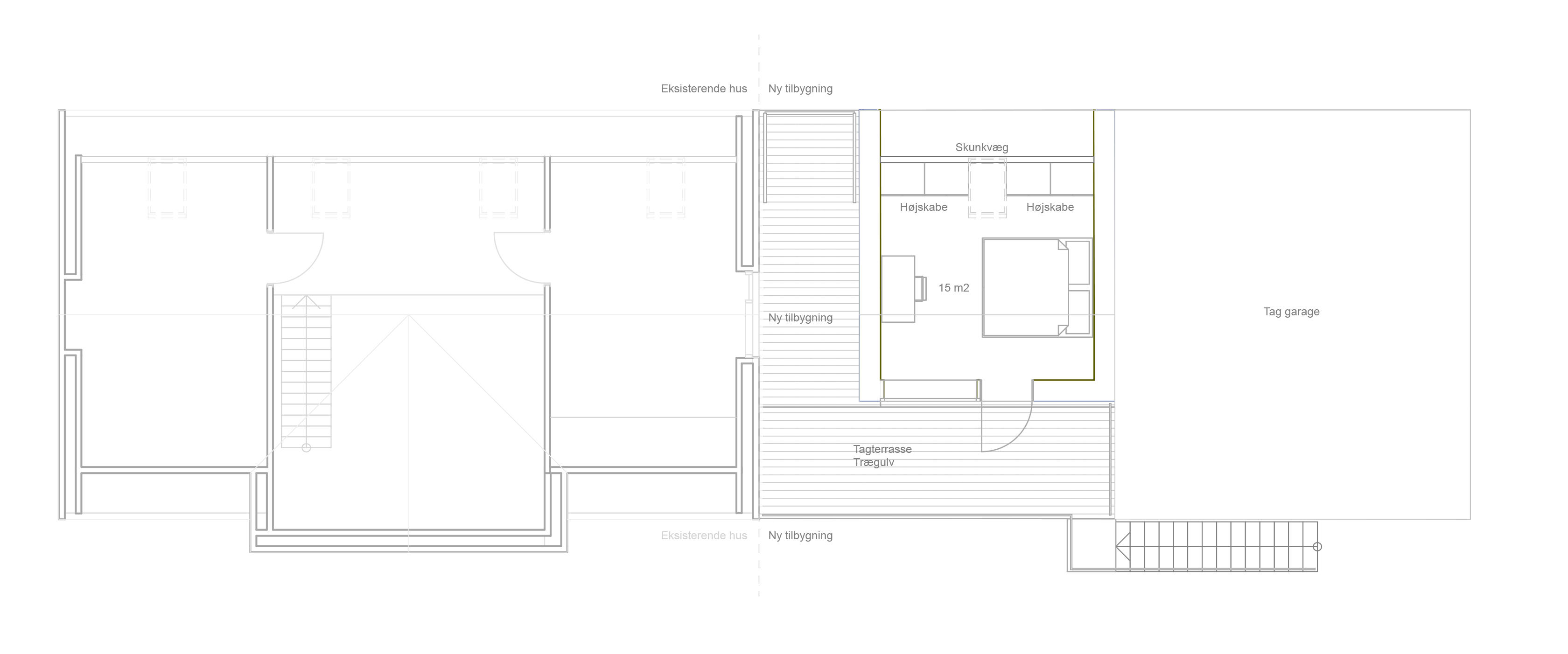
The plan is organised around a central circulation spine with direct access to the garden at both ends. On the ground floor, two identical bedrooms provide long-term flexibility, while the first floor is conceived as a single, coherent master area, where the extension and the existing house are functionally integrated.

Architecturally, the extension continues the yellow brickwork of the original house on the ground floor, establishing a strong and cohesive base. The first floor is treated as a distinct yet related element and clad in slate on both roof and façades. The material closely relates to the tone of the existing tiled roof, belonging to the same “family”, while clearly expressing the extension as a contemporary addition.


The window proportions on the first floor differ from those of the original house. This is a deliberate choice, allowing the extension to contribute a more contemporary expression and strong spatial qualities without imitating the existing architecture.

Typology: Architecture
Client: Private
Program: Extension
Location: Højby, Denmark
Year: 2026