

ANNEX IN MELBY
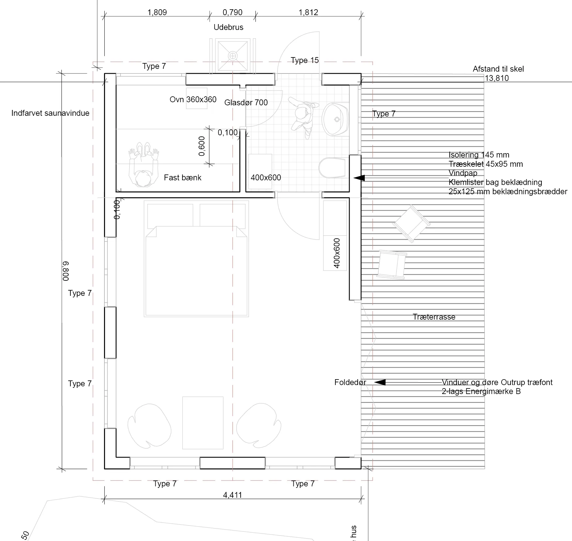
The project consisted of a concept design and subsequent planning application for an annex in Melby, near Liseleje. The client requested a relatively simple annex placed at the opposite end of the plot in relation to the holiday home. The program included a sauna, a small toilet, an outdoor shower, and a combined living/sleeping room.
The annex is clad with timber slats, fitted with wooden windows both inside and out, and topped with a sedum roof – all intended to create a natural expression and allow the annex to visually step back in relation to the existing holiday home.
For sustainability reasons, the annex is elevated above the ground and founded on earth screws. This construction method avoids the need for a concrete foundation, making it both more environmentally friendly and significantly more cost-efficient.
Typology: Architecture
Client: Private
Program: Annex
Location: Melby
Year: 2024
Status: In progress